Page5
| ※ 問題番号No.43〜No.61 までの19 問題は必須問題ですから全問題を解答してください。 |
| No43 | 下図のようにNo.0からNo.3までの水準測量を行い、図中の結果を得た。 No.3の地盤高は次のうちどれか。なお、No.0の地盤高は10.0 m とする。 |
|---|---|
![]() |
|
| 1 | 11.8 m |
| 2 | 11.9 m |
| 3 | 12.0 m |
| 4 | 12.1 m |
|
解答と解説: |
| No44 | 公共工事標準請負契約約款に関する次の記述のうち、正しいものはどれか。 |
|---|---|
| 1 | 受注者は、一般に工事の全部若しくはその主たる部分を一括して第三者に請け負わせることができる。 |
| 2 | 発注者は、工事の完成を確認するため、工事目的物を最小限度破壊して検査を行う場合、検査及び復旧に直接要する費用を負担する。 |
| 3 | 発注者は、現場代理人の工事現場における運営などに支障がなく、発注者との連絡体制が確保される場合には、現場代理人について工事現場に常駐を要しないこととすることができる。 |
| 4 | 受注者は、工事の完成、設計図書の変更等によって不用となった支給材料は、発注者に返還を要しない。 |
|
解答と解説: |
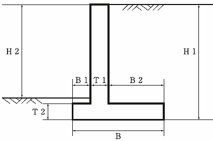
| No45 | 下図は逆T型擁壁の断面図であるが、逆T型擁壁各部の名称と寸法記号の表記として2つとも適当なものは、次のうちどれか。 |
|---|---|
![]() |
|
| 1 | 擁壁の高さH1、つま先版幅B1 |
| 2 | 擁壁の高さH1、底版幅B2 |
| 3 | 擁壁の高さH2、たて壁厚B1 |
| 4 | 擁壁の高さH2、かかと版幅B2 |
|
解答と解説: |
| No46 | 建設機械の用途に関する次の記述のうち、適当でないものはどれか。 |
|---|---|
| 1 | ドラグラインは、ワイヤロープによってつり下げたバケットを手前に引き寄せて掘削する機械で、しゅんせつや砂利の採取などに使用される。 |
| 2 | ブルドーザは、作業装置として土工板を取り付けた機械で、土砂の掘削・運搬(押土)、積込みなどに用いられる。 |
| 3 | モータグレーダは、路面の精密な仕上げに適しており、砂利道の補修、土の敷均しなどに用いられる。 |
| 4 | バックホゥは、機械が設置された地盤より低い場所の掘削に適し、基礎の掘削や溝掘りなどに使用される。 |
|
解答と解説: |
|
| No47 | 施工計画作成のための事前調査に関する次の記述のうち、適当でないものはどれか。 |
|---|---|
| 1 | 近隣環境の把握のため、現場周辺の状況、近隣施設などの調査を行う。 |
| 2 | 工事内容の把握のため、設計図書及び仕様書の内容などの調査を行う。 |
| 3 | 現場の自然条件の把握のため、地質調査、地下埋設物などの調査を行う。 |
| 4 | 労務・資機材の把握のため、労務の供給、資機材などの調達先などの調査を行う。 |
|
解答と解説: |
| No48 | 工事の仮設に関する次の記述のうち、適当でないものはどれか。 |
|---|---|
| 1 | 仮設には、直接仮設と間接仮設があり、現場事務所や労務宿舎などの快適な職場環境をつくるための設備は、直接仮設である。 |
| 2 | 仮設は、使用目的や期間に応じて構造計算を行い、労働安全衛生規則の基準に合致するかそれ以上の計画としなければならない。 |
| 3 | 仮設は、目的とする構造物を建設するために必要な施設であり、原則として工事完成時に取り除かれるものである。 |
| 4 | 仮設には、指定仮設と任意仮設があり、指定仮設は変更契約の対象となるが、任意仮設は一般に変更契約の対象にはならない。 |
|
解答と解説: |
| No49 | 施工計画の作成にあたり、建設機械の走行に必要なコーン指数が最も大きい建設機械は次のうちどれか。 |
|---|---|
| 1 | 普通ブルドーザ(21 t 級) |
| 2 | ダンプトラック |
| 3 | 自走式スクレーパ(小型) |
| 4 | 湿地ブルドーザ |
|
解答と解説: |
| No50 | 工程管理曲線(バナナ曲線)に関する次の記述のうち、適当でないものはどれか。 |
|---|---|
| 1 | 出来高累計曲線は、一般的にS字型となり、工程管理曲線によって管理する。 |
| 2 | 工程管理曲線の縦軸は出来高比率で、横軸は時間経過比率である。 |
| 3 | 実施工程曲線が上方限界を下回り、下方限界を超えていれば許容範囲内である。 |
| 4 | 実施工程曲線が下方限界を下回るときは、工程が進み過ぎている。 |
|
解答と解説: |
| No51 | 下図のネットワーク式工程表に示す工事のクリティカルパスとなる日数は、次のうちどれか。 ただし、図中のイベント間のA〜G は作業内容、数字は作業日数を表す。 |
|---|---|
![]() |
|
| 1 | 23日 |
| 2 | 22日 |
| 3 | 21日 |
| 4 | 20日 |
|
解答と解説: |
| No52 | 墜落による危険を防止する安全ネットに関する次の記述のうち、適当でないものはどれか |
|---|---|
| 1 | 安全ネットは、紫外線、油、有害ガスなどのない乾燥した場所に保管する。 |
| 2 | 安全ネットは、人体又はこれと同等以上の重さを有する落下物による衝撃を受けたものを使用しない。 |
| 3 | 安全ネットは、網目の大きさに規定はない。 |
| 4 | 安全ネットの材料は、合成繊維とする。 |
|
解答と解説: |


